電動、傘齒輪傳動鐵制暗桿閘閥
產品概述:
Z941W電動閘閥供適用于輕重工業及樓宇管道,流體前進的道路上。【閘閥】可應用于:化工、石化、石油、造紙、采礦、電力、液化氣、食品、制藥、給排水、市政、機械設備配套、電子工業,城建等領域。
電動法蘭閘閥是由閘閥閥體配用多回轉式電動執行器,使閥板作上下直線運動,實現遠程控制閥位開關,方便快捷。電動法蘭閘閥適用于公稱壓力PN1.6~16.0MPa,工作溫度≤-29℃~500℃的石油、化工、水力、火力電站等系統的管路上實現遠程控制閥位開關,切斷或接通管路介質。電動契式閘閥適用介質為:水、油品、蒸氣、及酸、堿、氨、尿素、含硫天然氣等。
- 技術參數
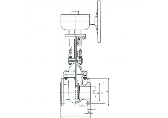
- 外型尺寸
- 零件材料
- 下載中心


